Заинтересовало предложение? Закажите обратный звонок
Офис 130 кв.м. в БЦ Голицын№ 19756
36 400 000 руб
Адрес:
13-я линия В.О, 6-8А
Район:
Василеостровский
Тип сделки:
Продажа
Тип здания:
Торговый центр
Входная группа:
Первая линия
Доходность:
8,6 %
Окупаемость:
140 мес

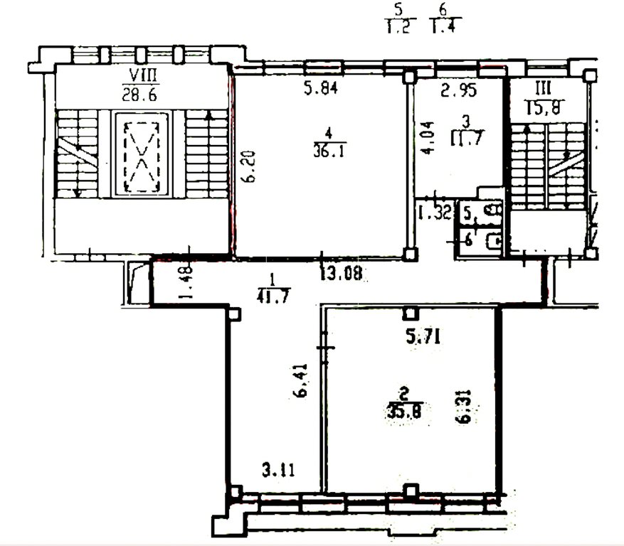
Общая площадь: 130,0 м2
Мощность: 15 кВт
Этаж: Второй этаж
Высота потолков: 3,0 м

Сверху нежилое помещение
Центральное горячее водоснабжение
Угловое
Продается офисное помещение 130 кв. м. на 2 этаже 6 этажного Бизнес центра «Голицын».
Бизнес-центр расположен на 13-й линии Васильевского острова, вблизи набережной Лейтенанта Шмидта, что обеспечивает связь с центральными районами. До станции метро «Василеостровская» можно за 15 мин дойти пешком. Район имеет удобные подъезды для личного и общественного транспорта по Большому проспекту В.О. и Набережной Лейтенанта Шмидта. Здание БЦ 2006 года постройки представляет собой деловой комплекс с высоким классом коммерческой недвижимости «В+». Полностью обеспечен всем комплексом коммуникаций и систем безопасности и включает: центральное отопление и водообеспечение, приточно-вытяжная вентиляция, система пожаротушения с сигнализацией. Контроль доступа и круглосуточная охрана, система видеонаблюдения, интернет.
В помещении проведен ремонт и полностью готово к заселению и началу деятельности. Удобная планировка кабинетного типа. Окна выходят в красивый и уютный внутренний двор и на 13 линию Васильевского острова.
Собственник физическое лицо. Обременения отсутствуют. Быстрый выход на сделку.
Звоните, показы по договоренности.
Получить лицензию на алкоголь и решить все возможные трудности
Установить систему автоматизации по специальной цене
Закупить оборудование у наших партнеров на особенных условиях
36 400 000 руб
Адрес:
13-я линия В.О, 6-8А
Район:
Василеостровский
Тип сделки:
Продажа
Тип здания:
Торговый центр
Входная группа:
Первая линия

Общая площадь: 130,0 м2
Мощность: 15 кВт
Этаж: Второй этаж
Высота потолков: 3,0 м

Сверху нежилое помещение
Центральное горячее водоснабжение
Угловое
Доходность: 8,6 %
Получить лицензию на алкоголь и решить все возможные трудности
Установить систему автоматизации по специальной цене
Закупить оборудование у наших партнеров на особенных условиях