Заинтересовало предложение? Закажите обратный звонок
Под кафе 172м2, газ, вытяжка, любой общепит№ 8502
350 000 руб / мес
Район:
Василеостровский
Тип сделки:
Аренда
Тип здания:
Жилой дом
Готовность:
Готовый бизнес
Входная группа:
Первая линия

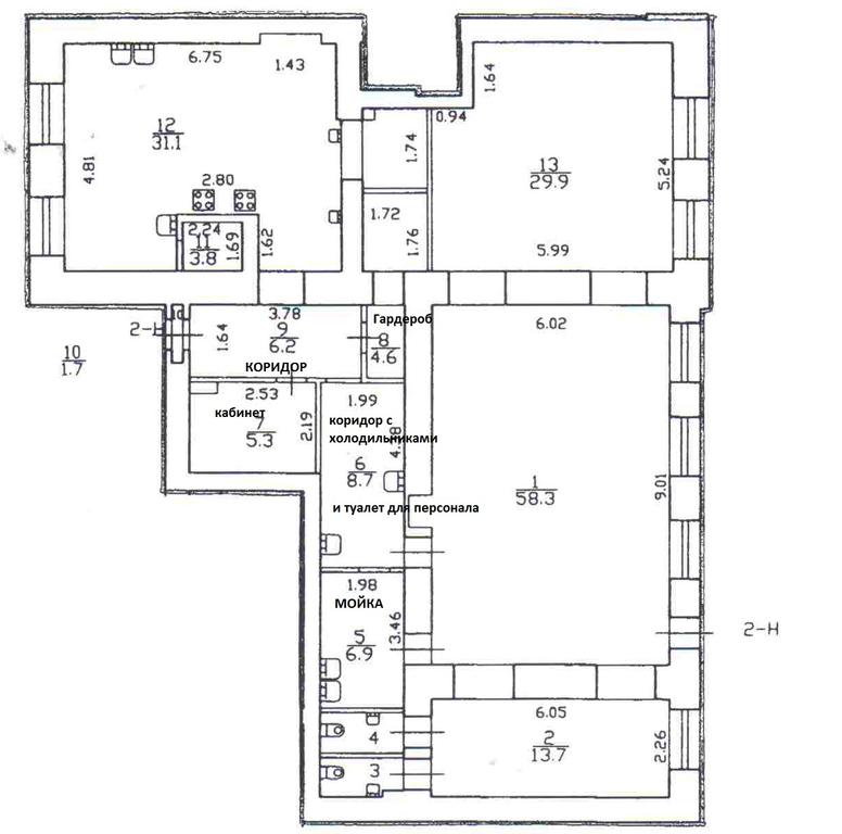
Общая площадь: 172,0 м2
Мощность: 25 кВт + газ
Этаж: Первый этаж
Высота потолков: 3,0 м

Вытяжка
Сверху нежилое помещение
Аренда помещения под общепит в Василеостровском районе.
м. Васильевский остров и м. Спортивная 5 минут пешком.
Первый этаж, 6 больших окон по фасаду.
Общая площадь 172.5 м2,
Выделенная электрическая мощность 22 кВт + ГАЗ(!).
Подведены все инженерные коммуникации, установлена приточно-вытяжная вентиляция, в том числе согласованы 2 свечи.
Помещение в работоспособном состоянии, требует минимальных вложений.
Локация: в радиусе 1 км есть 9 бизнес центров, новый бизнес класса ЖК "У Ростральных колонн", "Вавилов Лофт", ВУЗ СПбГУ, Университет ИТМО, 16 гостиниц.

Арендная ставка 350 000 рублей в месяц + КУ
Получить лицензию на алкоголь и решить все возможные трудности
Установить систему автоматизации по специальной цене
Закупить оборудование у наших партнеров на особенных условиях
350 000 руб / мес
Район:
Василеостровский
Тип сделки:
Аренда
Тип здания:
Жилой дом
Готовность:
Готовый бизнес
Входная группа:
Первая линия

Общая площадь: 172,0 м2
Мощность: 25 кВт + газ
Этаж: Первый этаж
Высота потолков: 3,0 м

Вытяжка
Сверху нежилое помещение
Получить лицензию на алкоголь и решить все возможные трудности
Установить систему автоматизации по специальной цене
Закупить оборудование у наших партнеров на особенных условиях