Заинтересовало предложение? Закажите обратный звонок
Общепит на Белинского, лицензия, 182 м2№ 19792
750 000 руб / мес
Адрес:
ул. Белинского, 8
Район:
Центральный
Тип сделки:
Аренда
Тип здания:
Жилой дом
Готовность:
Пустое помещение
Входная группа:
Первая линия

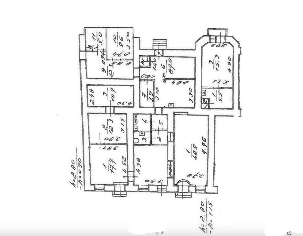
Общая площадь: 182,5 м2
Мощность: 50 кВт
Этаж: Цоколь
Высота потолков: 2,8 м

Вытяжка
Витринные окна
Центральное горячее водоснабжение
Объект находиться на пересечении одной из главных магистралей города - Литейном проспекте. Высокий пешеходный и автомобильный трафик, 13 минут пешком от станции метро Маяковская. Дом после капитального ремонта.

✅ Первая линия;
✅ Цокольный этаж;
✅ Отдельный вход;
✅ Место под вывеску;
✅ Общая площадь 182,5 м²;
✅ Высота потолков 2,8 м;
✅ Приточно-вытяжная вентиляция;
✅ Чистовая отделка;
✅ Мощность электросети 50 кВт.

Помещение отлично подойдет под любой вид деятельности: пекарню, общепит, салон красоты, парикмахерскую, СПА-салон, медицинский центр, лабораторию, аптеку, торговую точку, магазин, зоомагазин, образовательный центр, продукты, алкомаркет, цветочный магазин, кофейню, шоурум, сувениры, товары для дома, ПВЗ, табачный магазин, vape shop и другие виды бизнеса.
Получить лицензию на алкоголь и решить все возможные трудности
Установить систему автоматизации по специальной цене
Закупить оборудование у наших партнеров на особенных условиях
750 000 руб / мес
Адрес:
ул. Белинского, 8
Район:
Центральный
Тип сделки:
Аренда
Тип здания:
Жилой дом
Готовность:
Пустое помещение
Входная группа:
Первая линия

Общая площадь: 182,5 м2
Мощность: 50 кВт
Этаж: Цоколь
Высота потолков: 2,8 м

Вытяжка
Витринные окна
Центральное горячее водоснабжение
Получить лицензию на алкоголь и решить все возможные трудности
Установить систему автоматизации по специальной цене
Закупить оборудование у наших партнеров на особенных условиях