Заинтересовало предложение? Закажите обратный звонок
Угол Некрасова и Маяковского, на трафике.№ 13635
300 000 руб / мес
Адрес:
Маяковского 17
Район:
Центральный
Тип сделки:
Аренда
Тип здания:
Жилой дом
Готовность:
Пустое помещение
Входная группа:
Первая линия

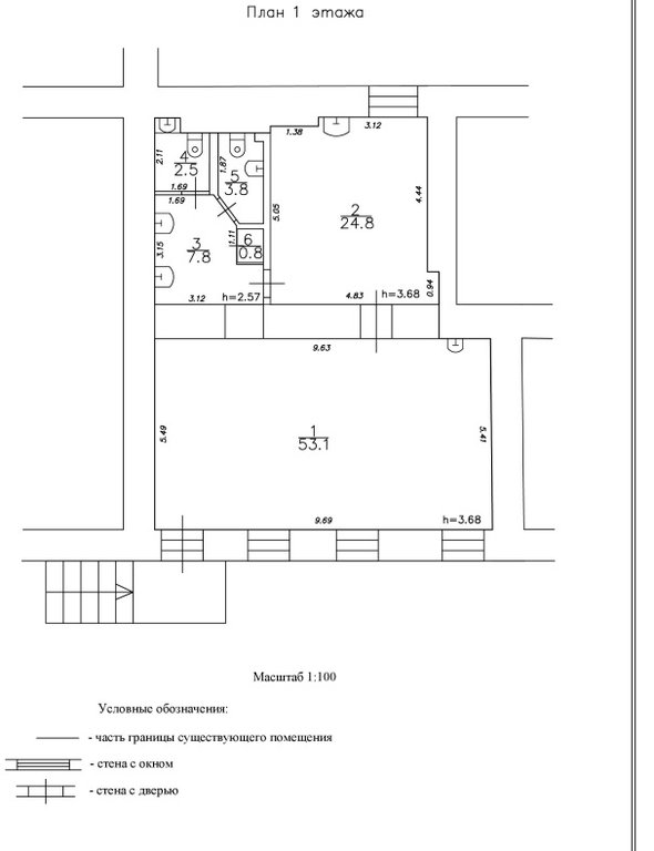
Общая площадь: 95,0 м2
Мощность: 25 кВт
Этаж: Бельэтаж
Высота потолков: 3,7 м

Вытяжка
Витринные окна
⭐️ На супер трафике, угол Маяковского и Некрасова! ⭐️
Шаговая доступность к метро пл. Восстания и Чернышевская!

✔️ Площадь помещения 95 м2
✔️ Дизайнерский ремонт
✔️ Два санузла
✔️ Просторная кухня
✔️ Есть возможность установки угольного фильтра для организации общепита.
✔️ Электрическая мощность 25 кВт
✔️ Высота потолков 3.7 метра

➤ Соседи: ресторан Aster, Булочная Ф. Вольчека, Грани, кулинария Два гуся, рестораны Nama, Сыроварня, Мапуче и многие другие! Сложившаяся гастрономическая локация!

Цена аренды: 300 000 руб\мес
Комиссия агентства: 150 000 руб.
Долгосрочный договор! Каникулы по согласованию!
Получить лицензию на алкоголь и решить все возможные трудности
Установить систему автоматизации по специальной цене
Закупить оборудование у наших партнеров на особенных условиях
300 000 руб / мес
Адрес:
Маяковского 17
Район:
Центральный
Тип сделки:
Аренда
Тип здания:
Жилой дом
Готовность:
Пустое помещение
Входная группа:
Первая линия

Общая площадь: 95,0 м2
Мощность: 25 кВт
Этаж: Бельэтаж
Высота потолков: 3,7 м

Вытяжка
Витринные окна
Получить лицензию на алкоголь и решить все возможные трудности
Установить систему автоматизации по специальной цене
Закупить оборудование у наших партнеров на особенных условиях